RIDA Commercial - Köln Lindweiler. Einzelhandelsfläche mit vielseitigen Nutzungsmöglichkeiten.

www.rida.gmbh
www.rida.gmbh
www.rida.gmbh
www.rida.gmbh
www.rida.gmbh
www.rida.gmbh
Lageplan
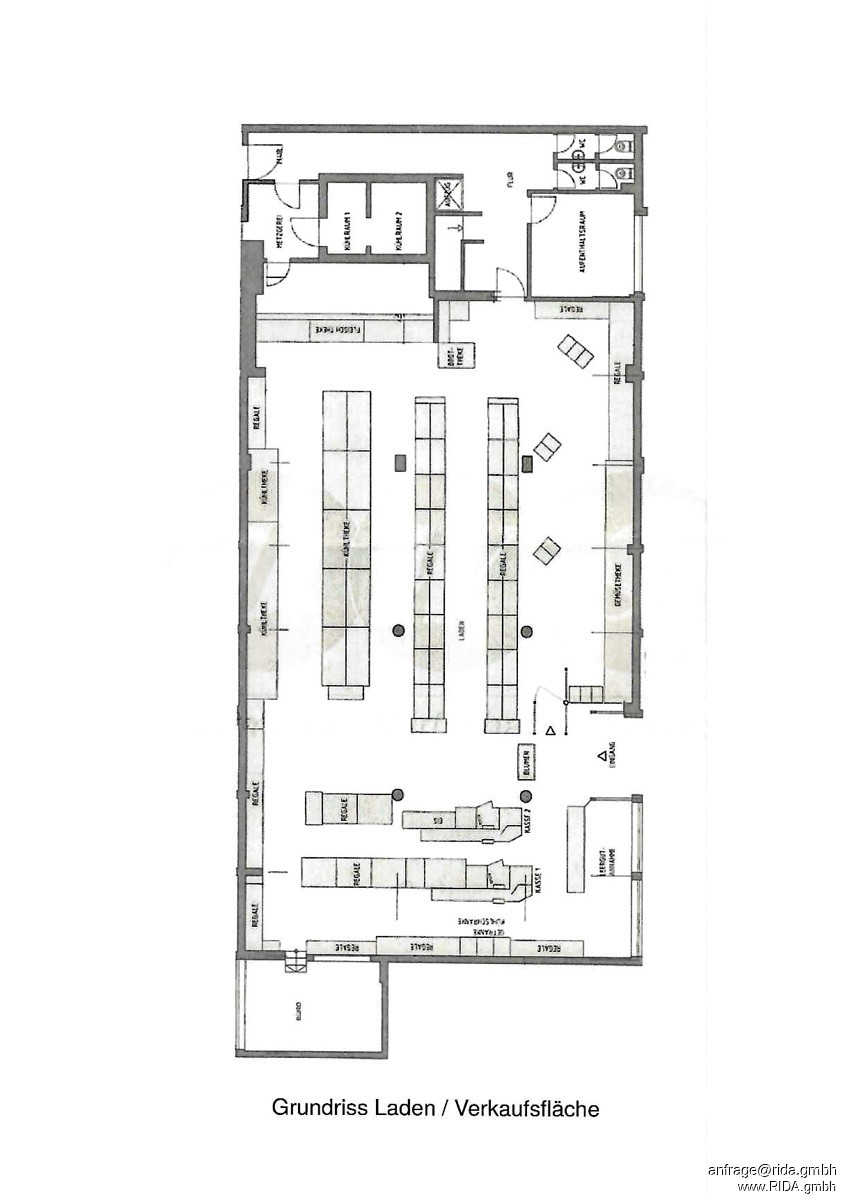
Grundriss_Verkaufsfläche_EG
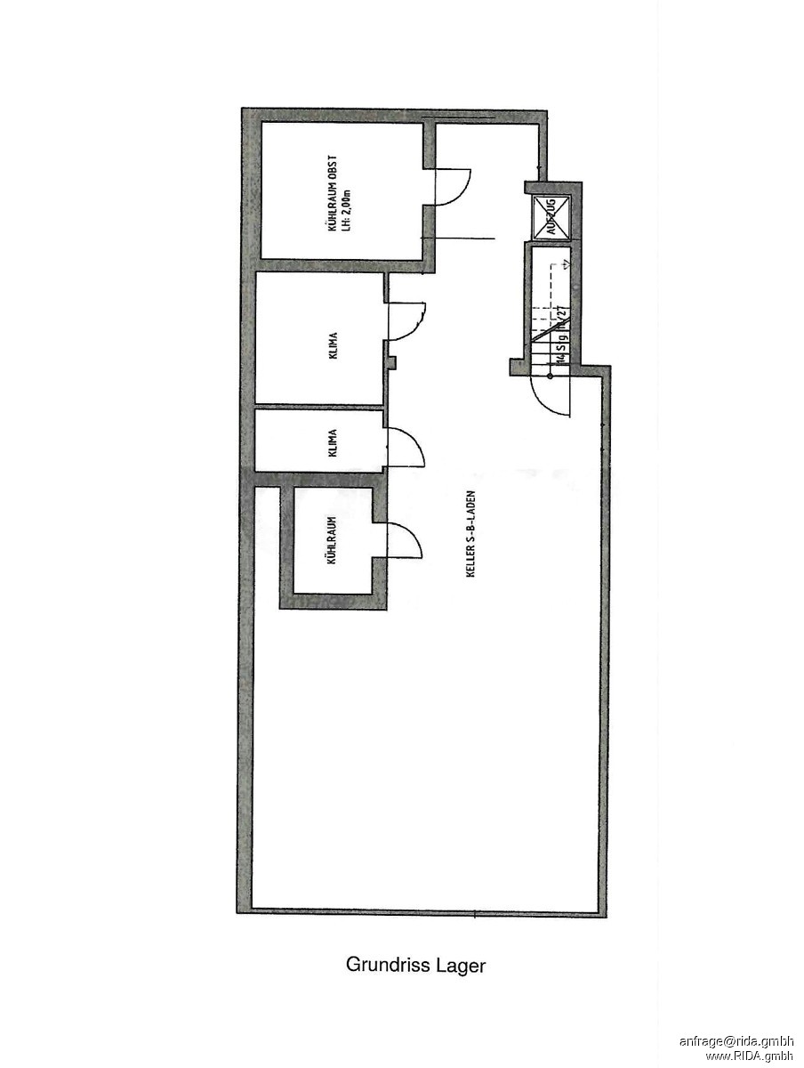
Grundriss_Lager_UG
Hausnummer
19
Objektart
Laden/Einzelhandel
Objekttyp
Ladenlokal
Vermarktungsart
Kauf
PLZ
50767
Ort
Köln
ImmoNr
2024-00864-RIDA
Kaufpreis
595.000,00 €
Baujahr
1972
Außen-Provision
3,57% inkl. 19% MwSt.

Beschreibung

Sie sind auf der Suche nach einem etablierten Ladenlokal mit diversen Erweiterungsmöglichkeiten? In Köln Lindweiler bieten wir Ihnen ein attraktives Einzelhandelsgeschäft mit zahlreichen Zusatznutzungen, das über die Jahre eine feste Kundenschaft aufgebaut hat.

Dieses Ladenlokal befindet sich im Erdgeschoss eines gepflegten Wohn- und Geschäftshauses und bietet eine großzügige Verkaufsfläche von ca. 320 m². Dazu kommen vielfältige Nebenräume auf derselben Etage, die Ihre Geschäftsmöglichkeiten erweitern:
- Bürofläche: ca. 16,2 m²
- Aufenthaltsraum: ca. 11,2 m²
- Zwei Kühlhäuser: ca. 3,7 m² und ca. 5,4 m²
- Metzgerei: ca. 14 m²
- Flur: ca. 36,3 m²
- WC: 6,2 m²

Darüber hinaus stehen Ihnen ca. 150 m² Keller- und Lagerflächen sowie zwei zusätzliche Kühlhäuser im Untergeschoss zur Verfügung, ideal für Lagerung und Logistik Ihrer Produkte.

Diese Immobilie bietet hervorragende Voraussetzungen für Unternehmer, die eine bestehende Einzelhandelsstruktur mit ausgezeichnetem Ruf übernehmen und weiterentwickeln möchten. Nutzen Sie die Chance, in einem etablierten Markt mit bewährter Kundenbasis erfolgreich zu sein.

Für weitere Informationen oder eine Besichtigung kontaktieren Sie uns gerne. Freuen Sie sich auf Ihr neues Geschäft in Köln Lindweiler, wo Tradition und Zukunftspotential Hand in Hand gehen!

Lage

Köln Lindweiler ist ein Stadtteil im Nordwesten von Köln, der sich durch seine gut ausgebaute Infrastruktur und seine attraktive Lage auszeichnet. Mit einem vielseitigen Angebot an Wohn- und Geschäftsimmobilien, einer engagierten lokalen Gemeinschaft und der Nähe zu wichtigen Verkehrsanbindungen bietet Lindweiler ideale Voraussetzungen für die Ansiedlung eines Einzelhandelsgeschäfts.

Lindweiler ist hervorragend an das öffentliche Verkehrsnetz angeschlossen. Mehrere Buslinien verbinden den Stadtteil mit dem Kölner Zentrum und anderen wichtigen Punkten in der Umgebung. Die Anbindung an das überregionale Straßennetz ist durch die Nähe zur Autobahn A57 gewährleistet, die eine schnelle Anfahrt sowohl aus dem Stadtzentrum als auch aus den umliegenden Regionen ermöglicht. Für Kunden und Mitarbeiter bedeutet dies eine einfache und komfortable Erreichbarkeit.

Lindweiler zeichnet sich durch eine gemischte Bewohnerstruktur aus. Familien, junge Berufstätige und Senioren bilden eine breite potenzielle Kundenbasis für Einzelhandelsangebote. Der Stadtteil profitiert zudem von einer stetigen Bevölkerungsentwicklung, was die Nachfrage nach lokalen Einkaufsmöglichkeiten kontinuierlich unterstützt.

Köln Lindweiler ist mit seiner entwickelten Infrastruktur, der guten Verkehrsanbindung und einer stabilen demografischen Entwicklung der ideale Standort für Einzelhändler, die eine langfristige Investition in einem lebendigen Stadtteil suchen. Die hier angebotene Immobilie bietet durch ihre Lage und Ausstattung hervorragende Voraussetzungen für einen erfolgreichen Geschäftsbetrieb und die Möglichkeit, auf die Bedürfnisse einer breiten Zielgruppe einzugehen.

Ausstattung

Highlights im Überblick:

-Gewerbeeinheit im Erdgeschoss
- Über 40 Jahre erfolgreicher Supermarktbetrieb
- 7 private Stellplätze für Eigentümer / div. Parkmöglichkeiten für Kunden
- Hohe Stammkundenfrequenz und breite Bekanntheit in der Region
- Strategische Lage in Köln Lindweiler mit guter Verkehrsanbindung und Kundenparkplätzen
- Das Ladenlokal ist voll ausgestattet und sofort betriebsbereit.
- Neben dem Hauptgeschäft der Lebensmittelversorgung bieten die spezialisierten Einrichtungen wie eine Backstube, eine Metzgerei, Getränkelager und weitere Kühlhäuser Potential für zusätzliche Geschäftseinnahmen

Eine besondere Flexibilität bietet die Beschaffenheit der Wände in der Einheit, die größtenteils als Leichtbauwände konzipiert sind. Dies ermöglicht es Ihnen, die Raumgestaltung nach Ihren individuellen Vorstellungen anzupassen und Ihre Geschäftsideen optimal umzusetzen. Mit Leichtigkeit können Sie Wände entfernen oder versetzen, um die Fläche nach Ihren Bedürfnissen zu gestalten und Ihren Geschäftskonzepten Raum zu geben.

Sonstige Angaben

Die zu verkaufende Einzelhandelsfläche befindet sich in einem gepflegten Wohn- und Geschäftshaus mit einer etablierten Einzelhandelshistorie von über 40 Jahren als Supermarktbetrieb. Die hohe Frequenz an Stammkunden und die breite Bekanntheit in der Region sind klare Indikatoren für das hohe geschäftliche Potenzial. Die vorhandenen Einrichtungen wie Backstube, Metzgerei, Kühlhäuser und ein großzügiger Lagerbereich bieten vielfältige Möglichkeiten zur Erweiterung und Spezialisierung des Angebots, was zusätzliche Kundenschichten ansprechen kann.

Ansprechpartner

Herr Beyhan Serifi

RIDA GmbH

Bonner Straße 12
51379 Leverkusen

Telefon1

+49 2171 401 78-99

Email

bs@rida-immo.de

Dokumente

PDF-Exposé

Name*:
Telefonnummern:
E-Mail*:
Nachricht*:

Ich stimme der Datenschutzerklärung zu.